Tile Texture 2 (1)

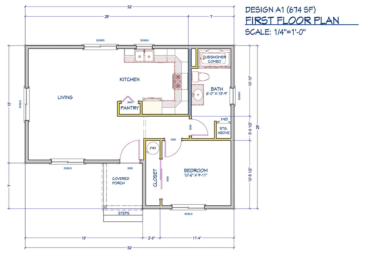
Alta-1

Package Details

$218,000

Structure
From the mudsill and above including the floor & roof systems, interior & exterior walls, code-required hardware, and all OSB sheathing to meet code. 8’+ wall height with vaulted ceiling in Living and Kitchen exceeding 10’ at the peak.
Native concrete-colored broom-finish flatwork with 5/4×6 wood-wrapped paint-finish column. Beadboard (panel) soffit only at the front porch with all other soffits to be left open with overhang smooth open soffit board in a white painted finish.
Hardieplank lap siding on the main body with Hardieshingles on gables for accent. Primed White Wood 5/4×4 trims around windows, inside & outside corners, 5/4×10 belly band, 5/4×6 barge and fascia boards.
Premier composition roofing (equivalent to 30-year) with drip edge and metal flashing where needed.

White (exterior) / White (interior) Low-E / Argon filled double-pane glass vinyl windows with screens (additional charges apply to any other window frame color variation).

6’8” fiberglass insulated door with partial glass with a double bore set up for door handle & deadbolt combination.

Rough-in with PEX for supplies and ABS for drains. One cold spigot on exterior wall outside of the bathroom. Fixtures and trim-out per Sockeye Homes’ $30K (Bathroom) & $50K (Kitchen) Packages (select one each).

(1) mini-split system with Two (2) wall-mounted or in-ceiling cassettes. Two (2) vent & exhaust fans in Kitchen and Bathroom with One (1) in-wall electric auxiliary heater in Bathroom.
125 or 200 amps depending on the main house’s service and availability, standard wiring & outlets with code-compliant AFCI/GFCI breakers where needed.
Six (6) recessed can lights, Two (2) wall mounted lights, and One (1) ceiling mounted light.
Fiberglass insulation to meet the up-to-date Washington State Energy Code adopted in March 2024.
Asbestos-free sheetrock that meets all fire code requirements, light- to medium-dash orange peel texture throughout with square cornerbeads.
Flatstock casing & baseboard and HDF one-panel hollow core pre-hung doors with satin nickel hardware.

Per Sockeye Homes’ $30K (Bathroom) & $50K (Kitchen) Packages (select one each).

Per Sockeye Homes’ $30K (Bathroom) & $50K (Kitchen) Packages (select one each).

MSI Limbark LVP (Luxury Vinyl Planks) throughout.
Three (3) exterior paint colors, One (1) neutral-tone interior color for both walls & ceiling, and One (1) white painted millwork & interior doors (*No dark paint color allowed for the entry door).
Wire shelving for Four (4) rows in Pantry and One (1) row in closet and above the washer & dryer.
Graded and cleaned up to meet code within Five (5) feet around the perimeter of the foundation.

*Note: Site prep, utilities, foundation, (if required – drainage/hardscape/fire suppression/flame retardants), and sales tax are not included in the package, and will be itemized separately in the cost breakdown after SkyDADU assesses the requirements specific to your property. The renderings shown may depict optional features or enhancements that are not included in the package offering. For complete and accurate details, please refer to the specifications noted above.

Ready to get started or have questions?

Call us

(253) 737-4456

Mail us

Using our easy contact form